KASLIK RESIDENTIAL COMPOUND

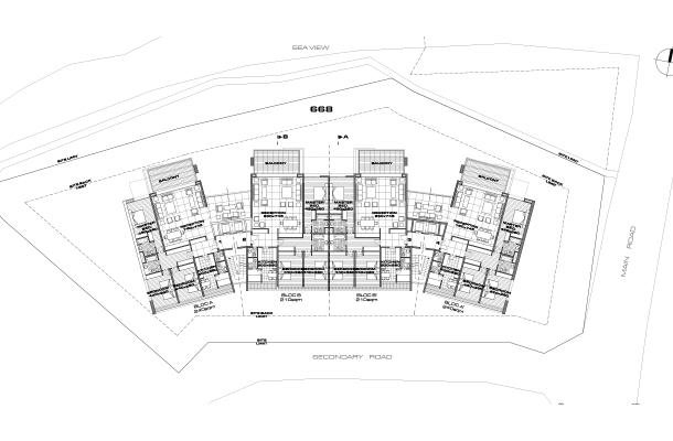
Fact Sheet Category: Residential Buildings and Compounds Location: Kaslik, Lebanon Client: Nasrallah Group Built-up area: 7.200 sqm Year: 2008 Status: Preliminary Concept Design Collaborators Renders: Rawad Boutros Seven floors residential building made up of four apartments per level, accessible through [...]





Recent Portfolios